GEDIGEN 60'ER VILLA KLAR TIL ET NYT KAPITEL - MED HELE 214 ETAGEMETER!
—
Introduktion
På en hyggelig villavej i Ortved, mellem Ringsted og Roskilde, kan jeg nu præsentere denne skønne og solide 60’er-ejendom – perfekt for dig, der drømmer om plads, kvalitet og landlig ro i ét. Der er tale om en bolig, der trods ejendommens alder, er i imponerende stand, samt har en bemærkelsesværdig høj kælder, der inviterer til væld af anvendelsesmuligheder. Her venter en bolig med charme og historie, klar til at starte et nyt kapitel.
Ejendommen
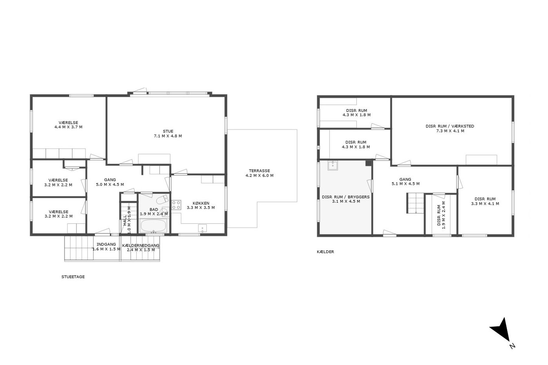
Boligen er af ejeren og dennes familie opført i 1965 og byder på hele 107 m² i stueplan samt en høj kælder af samme størrelse, hvilket giver samlet over 200 m² etagemeter. Her er således rigeligt med anvendelige opholds- og opbevaringsarealer, til gavn for både den store familie eller dem med mange hobbyer. I stueetagen er husets tre regulære værelser placeret, alle tilgængelige via den fine fordelingsgang hvortil der også kan tilgåes både stue, køkken, toilet/bad samt nedgang til kælder. Fra stuen er der direkte udsyn til marker og landskab, hvilket inviterer naturen helt ind i hjemmet. Konstruktionen er gedigen – murstensfacaden vidner om en tid, hvor byggekvalitet virkelig blev taget alvorligt. Murværket ligner det bliev bygget i går. Mildt sagt imponerende. Kælderen er sund og anvendelig, klar til dine idéer: hobbyrum, værksted, hjemmekontor eller måske praktisk opbevaring, ekstra toliet/bad eller det store vaskerum og vikturialierum.
Beliggenhed
Nebsmøllevej 56 ligger perfekt placeret mellem de historiske byer Ringsted og Roskilde – et område kendt for sin driftige lokalbefolkning og smukke natur. Her er du omgivet af et roligt og solidt naboskab. Skoler som Vigersted Skole ligger tæt på, og transportmulighederne er gode med forholdsvis kort afstand til motorvej, offentlig transport og både Ringsted og Roskilde centrum. Alene placeringen gør denne villa til et oplagt valg for familien, der ønsker nærhed til dagligdagens fornødenheder uden at gå på kompromis med naturskøn beliggenhed.
Nebsmøllevej 56 er en sjælden mulighed for at overtage en solid 60’er-bolig af høj håndværksmæssig kvalitet med et enestående kælderareal beliggende i rolige og naturskønne omgivelser. Kontakt mig i dag for mere information eller for at arrangere en fremvisning.
Mathias Mendel L. Bach
Cand.jur. & Ejendomsmægler
+45 30 22 50 20

